ARCHITECTURE & PERMISSION DOCUMENTS 

Bur Oaks House

PROJECT OBJECTIVES

Environmental Considerations

The Bur Oaks House project presents a unique challenge as the client desires a separate guest house to be situated at the rear portion of the main house.

The land lot itself poses difficulties due to its linear shape and proportions. Additionally, the project must adhere to environmental considerations, specifically regarding the preservation of aged trees on-site, which need to be seamlessly integrated into the design.

To meet the client's requirements, our team collaborated closely with them, ensuring that all their requests were addressed. 

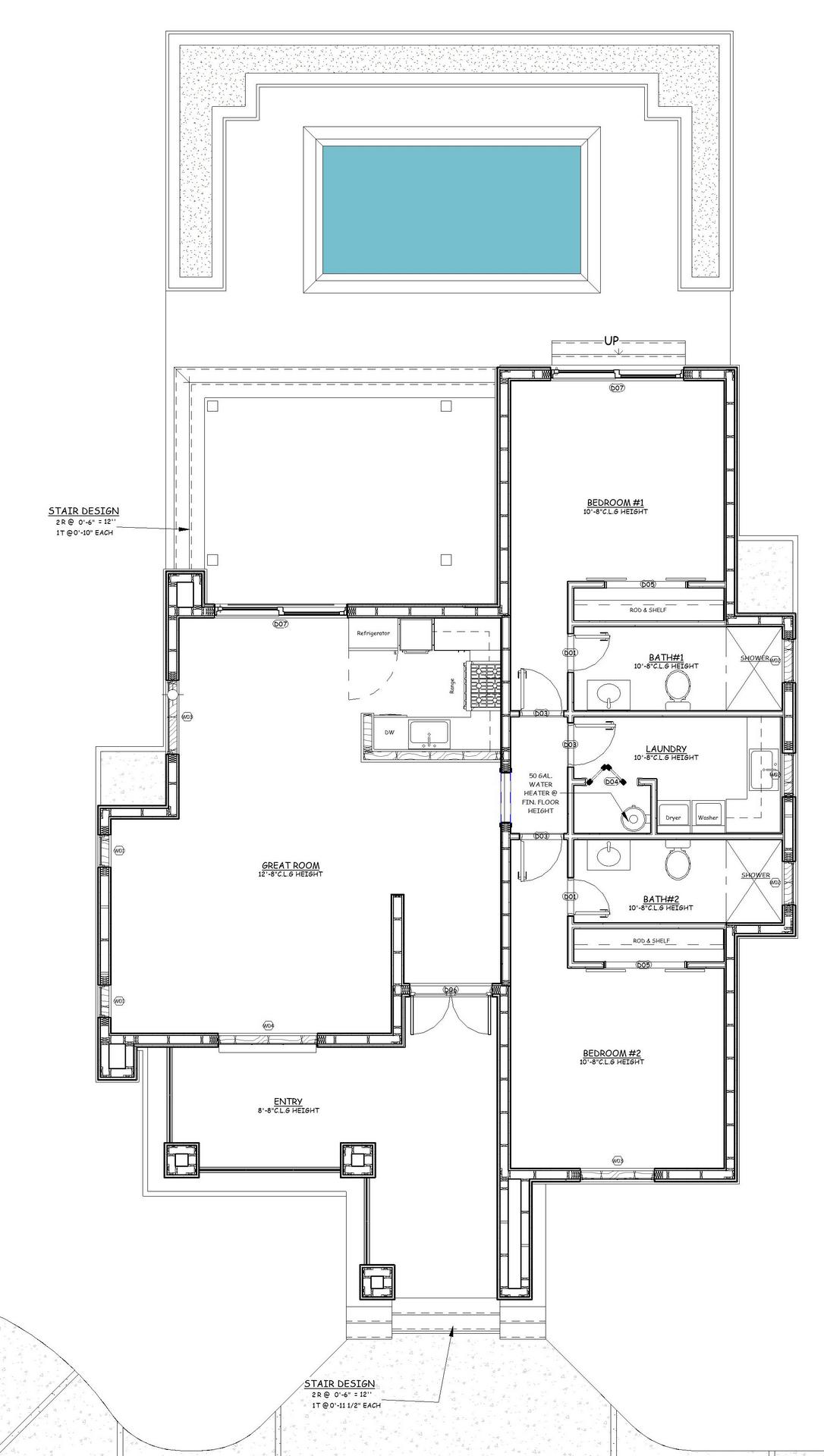
The result is a modern house with four spacious suites, complemented by a detached guest house that maintains a harmonious design spirit while incorporating distinct elements and materials. 

Despite the challenges posed by the land lot and environmental concerns, our design will successfully maximize the available space and create a cohesive architectural composition. 

The Bur Oaks House will exude a contemporary aesthetic, featuring a seamless blend of functionality, comfort, and visual appeal. 

By incorporating the existing trees into the design, the project will embrace sustainability and celebrate the natural surroundings, providing a tranquil and inviting living environment for both the main house and the guest house. 

Location

Florida, USA 

Scope of work

Architecture & Permission
Documents 

Client

A+ Construction

Get Your Free Consultation Now!

SPEAK TO AN EXPERT